Casa Migiur

Schweiz · Surselva · Laax

#CH7031.675.1

Gäste 6
Räume 3
Schlafzimmer 2
Badezimmer 2

Highlights & Ausstattung

Bbq Mountainbiking Dishwasher Hiking Mountains Mountains Lakes Parking Pool Sauna Washingmachine Icerink Pool Indoor Internet Balcony Skiarea Snowboard Toboggan Winterwalkingpath Wlan

Beschreibung

Innenbereich

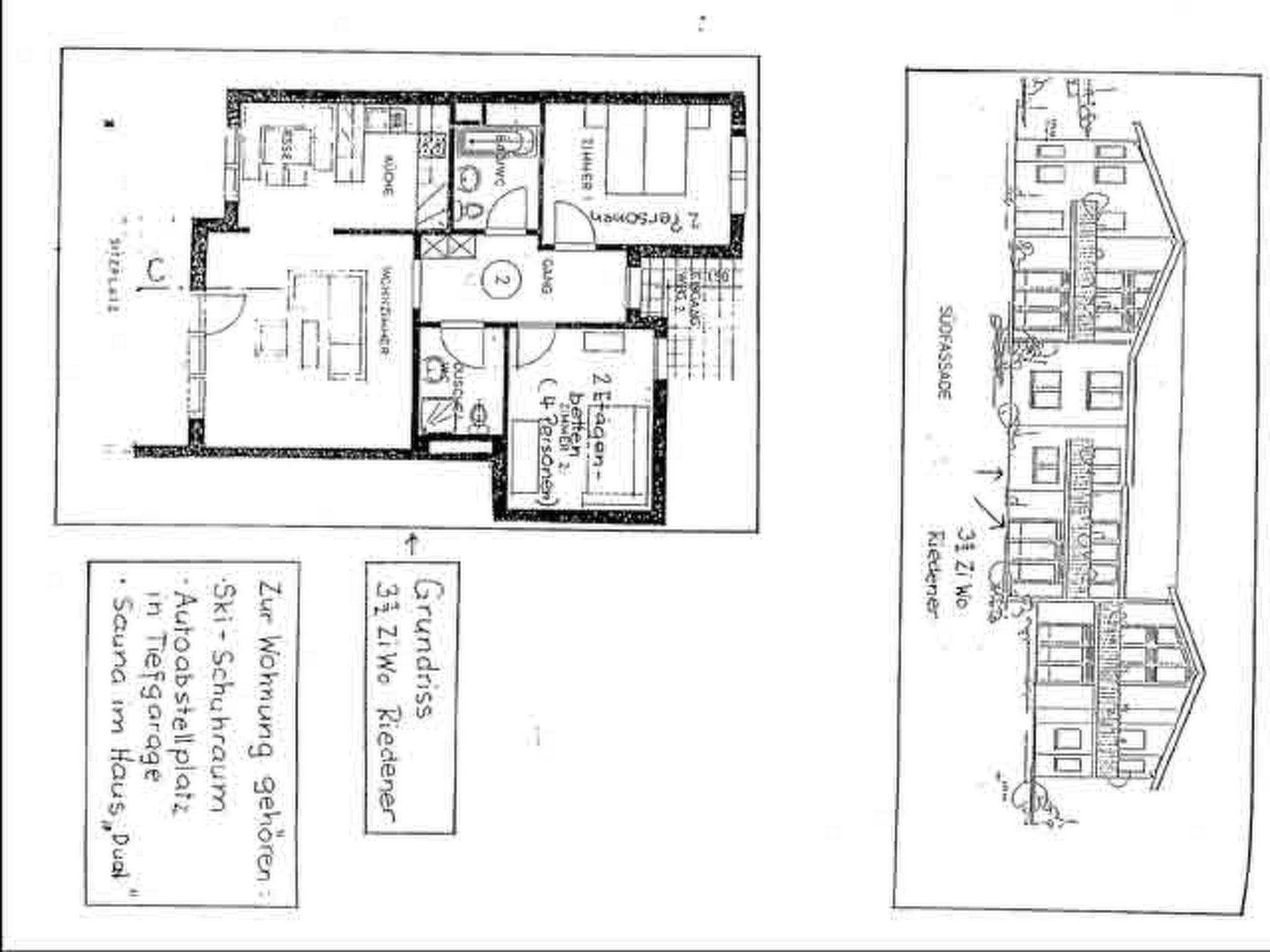
73 m2. Weitere Angaben des Anbieters: Die Wohnung besitzt zwei Nasszellen: ein grosses Bad mit Badewanne und WC und einen Raum mit Duschkabine und WC. Im Eltern-Schlafzimmer befindet sich ein Doppelbett, im zweiten Schlafzimmer zwei Kajütenbetten (Hochbetten) mit vier auch für Erwachsene bequemen Schlafplätzen. Zur Küche gehören eine Geschirrspülmaschine, ein Glaskeramikherd und ein grosser Kühlschrank mit Tiefkühlfach. WLAN haben Sie in der ganzen Wohnung (kostenfrei), einen Flatscreen-TV, Kabelanschluss mit über 40 nationalen, bzw. internationalen Sendern, Radioempfang auch übers Kabel. Für Kleinkinder kann auf Anfrage ein Campingbett (Reisebett) zur Verfügung gestellt werden. Es stehen Ihnen ein Autoabstellplatz in der Tiefgarage und Parkplätze im Freien zur Verfügung. Haustiere auf Anfrage.
Check In: 15.00 Uhr Check Out: 10.00 Uhr. Wenn ein Hund mitgeführt wird, wird dieser mit CHF 10.00 CHF pro Nacht berechnet und am Ende des Urlaubes vor Ort einkassiert. Eine eventuelle Saunabenutzung in Höhe von CHF 12.00 pro Benützung werden am Ende des Urlaubes vor Ort berechnet.

Außenbereich

3.5 Zimmerwohnung, 73 Quadratmeter (6 Personen) in einem Mehrfamilienhaus. Die Wohnung liegt in einer ruhigen Gegend am Rande des Dorfes mit Blick auf eine geschützte Berglandschaft. Das Dorf ist in 8 Minuten zu Fuß erreichbar und die Skibushaltestelle "Demvitg" kann in 5 Minuten erreicht werden. Der Skibus führt Sie kostenlos in 5 Minuten Fahrzeit zur Seilbahnstation Murschetg. Die Wohnung liegt im Erdgeschoss eines zweistöckigen Hauses, bestehend aus sechs Wohnungen. Sie ist nach Südwesten ausgerichtet. Die Terrasse lädt zum Sonnenbaden ein. Ein Grill steht ebenfalls zur Verfügung.Die Ausstattung umfasst eine Sauna. Alle Skis, Snowboards und Schuhe können in einem separaten, trockenen Raum aufgestellt werden. In die Sauna kommen Sie wie folgt: Gehen Sie durch die Tiefgarage in die Casa Dual. Die Sauna liegt im Erdgeschoss der Casa Dual. Bitte tragen Sie Ihren Namen und Ihre Reservierungs-Details in das Buch außerhalb der Sauna ein. Die Kosten für Bettwäsche und Handtücher in der Höhe von CHF 20.00 pro Person und die Endreinigung sind im Angebot enthalten.

Lage & Umgebung

Aktivieren Sie die Kartenansicht, um die genaue Lage zu sehen.

Schweiz, Surselva, Laax